Skip To Content

261 Mayflower Dr.

Calabash, NC 28467
  • $375,000
  • STATUS: Closed
  • ON SITE: 349 Days
  • MLS #: 2511415
Sold - 08/26/2025
$375,000
SOLD - 08/26/2025
  • 4
    BEDS
  • 0.23
    ACRES
  • 3
    BATHS
  • 0
    1/2 BATHS
  • 2,685
    SQFT
  • $0
    $/SQFT
Neighborhood:
Type:
Single-Family Home
Built:
2025
County:

School Information

Description

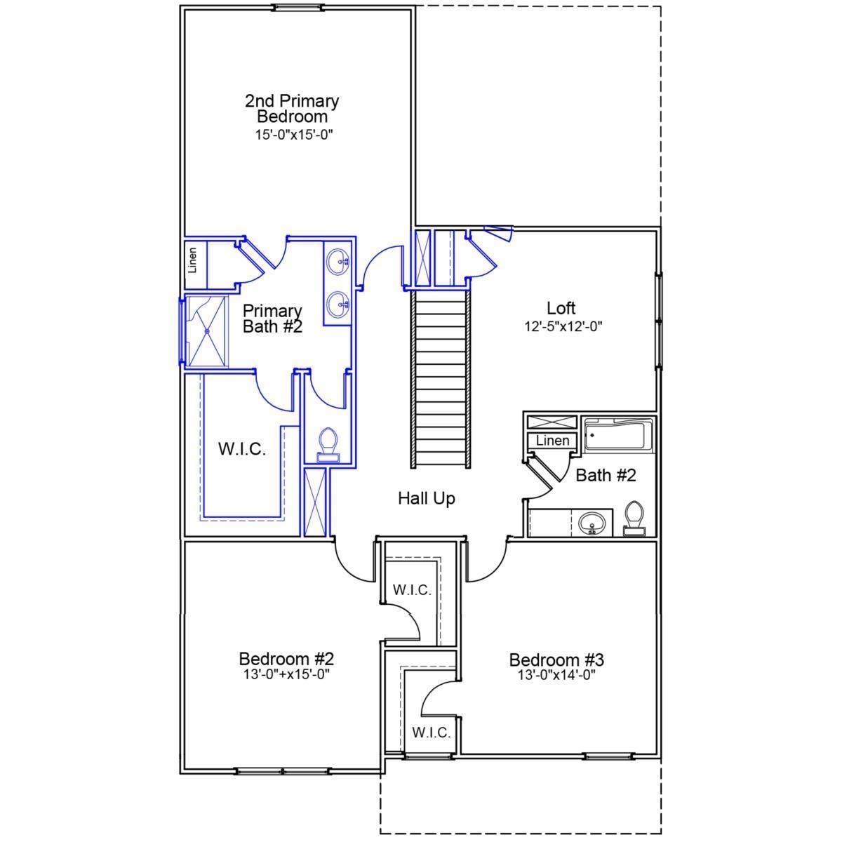
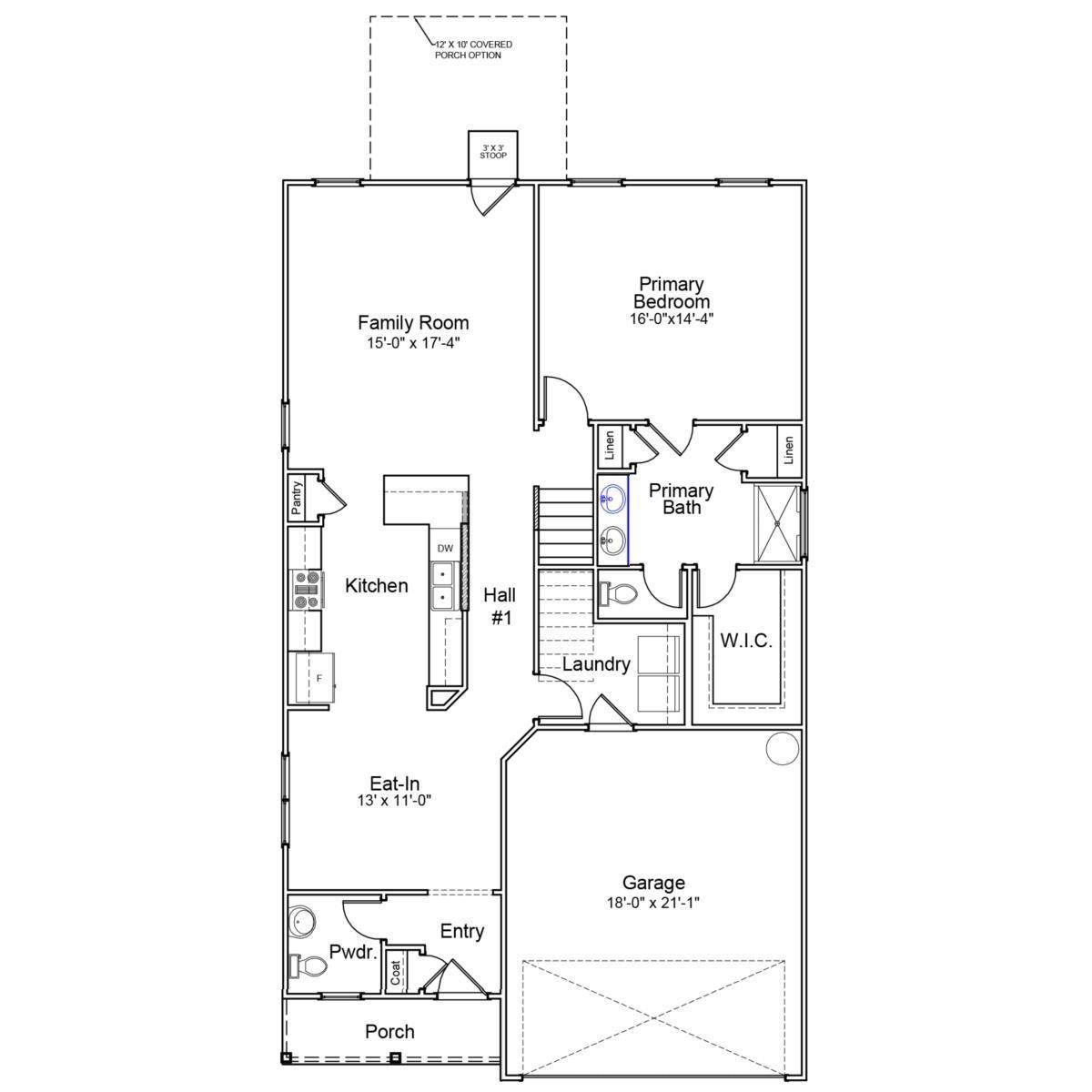
Welcome to Allston Park in Calabash, NC!!! This two-story home has 2 Primary bedrooms. One up and one downstairs. Three full bathrooms. Large secondary bedrooms with walk in closets. This home comes with a great loft upstairs.

Monthly Payment Calculator



Coastal Carolina Association of Realtors logo© 2026 Coastal Carolinas Association of REALTORS® MLS. All rights reserved. IDX information is provided exclusively for consumers' personal, non-commercial use and may not be used for any purpose other than to identify prospective properties consumers may be interested in purchasing. Information is deemed reliable but is not guaranteed accurate by the MLS or Sloan Realty Group. The data relating to real estate for sale or lease on this web site comes in part from CCAR. Real estate listings held by brokerage firms other than Sloan Realty Group are marked with the CCAR logo or an abbreviated logo and detailed information about them includes the name of the listing broker. Data last updated: 2026-04-21T00:20:37.15.
www.myrtlebeachrealestatedeals.com/homes/163412600
Print Image

261 Mayflower Dr. Calabash, NC 28467

  • Price: $379,900
  • Status: Closed
  • On Site: 349 Days
  • Updated: 136 min ago
  • MLS #: 2511415
4
Beds
3
Baths
0
½ Baths
0.23
Acres
2,685
SQFT
$0
$/SQFT
2025
Built
Neighborhood:
Allston Park - Nc
County:
Brunswick
Area:
31B North Carolina
Elementary School:
Jesse Mae Monroe Elementary Scho
Middle School:
Shallotte Middle School
High School:
West Brunswick High School
Property Description
Welcome to Allston Park in Calabash, NC!!! This two-story home has 2 Primary bedrooms. One up and one downstairs. Three full bathrooms. Large secondary bedrooms with walk in closets. This home comes with a great loft upstairs.
Exterior Features

Architectural Style Traditional Attached Garage YN Yes Garage YN Yes Parking Features Attached Garage Two Car Garage Parking Total 4 Property Attached YN No

Interior Features

Furnished Unfurnished

Property Features

Association Fee 47 Association Fee Frequency Monthly Association YN Yes Builder Model Rutherford C Builder Name Mungo Homes Development Status New Construction Home Warranty YN Yes Lease Considered YN No New Construction YN Yes Property Condition Never Occupied Property Sub Type Detached Property Sub Type Additional Detached Special Listing Conditions None Zoning R75

Coastal Carolina Association of Realtors logo Listing information © 2026 Coastal Carolinas Association of REALTORS® MLS. Listing provided by CPG Inc. dba Mungo Homes:.


Coastal Carolina Association of Realtors logo© 2026 Coastal Carolinas Association of REALTORS® MLS. All rights reserved. IDX information is provided exclusively for consumers' personal, non-commercial use and may not be used for any purpose other than to identify prospective properties consumers may be interested in purchasing. Information is deemed reliable but is not guaranteed accurate by the MLS or Sloan Realty Group. The data relating to real estate for sale or lease on this web site comes in part from CCAR. Real estate listings held by brokerage firms other than Sloan Realty Group are marked with the CCAR logo or an abbreviated logo and detailed information about them includes the name of the listing broker. Data last updated: 2026-04-21T00:20:37.15.
 
https://bt-photos.global.ssl.fastly.net/ccar/1280_boomver_2_2511415-2.jpg https://bt-photos.global.ssl.fastly.net/ccar/1280_boomver_2_2511415-2.jpg https://bt-photos.global.ssl.fastly.net/ccar/1280_boomver_2_2511415-2.jpg
Logo
Sloan Realty Group
3120 Waccamaw Blvd Ste C
Myrtle Beach SC, 29579