Skip To Content

TBD Highway 90

Little River, SC 29566
  • $725,000
  • STATUS: Active
  • ON SITE: 280 Days
  • MLS #: 2502737
UPDATED: 24 min ago
$725,000
  • 0
    BEDS
  • 1.67
    ACRES
  • 0
    BATHS
  • 0
    1/2 BATHS
Type:
Vacant Land / Lots
County:

School Ratings & Info

Description

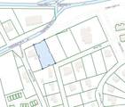
This prime commercial property is located in Cedar Creek Professional Center, Little River, SC, and is 2 lots together.. Zoned PDD, this parcel offers significant road frontage and is situated in a high-traffic area, ideal for commercial projects. Little River is one of the fastest-growing communities along the Grand Strand, just minutes from Myrtle Beach, SC, and Calabash, NC. With ongoing development surrounding this property, clearing and building will be straightforward. Utilities, including water and electricity, are readily available. Seize this opportunity to establish your commercial venture in a thriving and strategically located area.

Monthly Payment Calculator



Coastal Carolina Association of Realtors logo© 2025 Coastal Carolinas Association of REALTORS® MLS. All rights reserved. IDX information is provided exclusively for consumers' personal, non-commercial use and may not be used for any purpose other than to identify prospective properties consumers may be interested in purchasing. Information is deemed reliable but is not guaranteed accurate by the MLS or Sloan Realty Group. The data relating to real estate for sale or lease on this web site comes in part from CCAR. Real estate listings held by brokerage firms other than Sloan Realty Group are marked with the CCAR logo or an abbreviated logo and detailed information about them includes the name of the listing broker. Data last updated: 2025-11-11T18:20:39.113.
www.myrtlebeachrealestatedeals.com/homes/159994153
Print Image

TBD Highway 90 Little River, SC 29566

  • Price: $725,000
  • Status: Active
  • On Site: 280 Days
  • Updated: 24 min ago
  • MLS #: 2502737
0
Beds
0
Baths
0
½ Baths
1.67
Acres
Neighborhood:
Cedar Creek - Little River
County:
Horry
Area:
04B Little River Area--North of Hwy 9
Property Description
This prime commercial property is located in Cedar Creek Professional Center, Little River, SC, and is 2 lots together.. Zoned PDD, this parcel offers significant road frontage and is situated in a high-traffic area, ideal for commercial projects. Little River is one of the fastest-growing communities along the Grand Strand, just minutes from Myrtle Beach, SC, and Calabash, NC. With ongoing development surrounding this property, clearing and building will be straightforward. Utilities, including water and electricity, are readily available. Seize this opportunity to establish your commercial venture in a thriving and strategically located area.
Exterior Features

Lot Features Outside City Limits Rectangular Rectangular Lot Wooded Road Frontage Type State Road Road Surface Type Asphalt

Property Features

Association Fee 0 Association Fee Frequency Monthly Association YN No Lease Considered YN No Listing Terms Cash Conventional Location Outside City Limits Property Sub Type Commercial Property Sub Type Additional Commercial Unimproved Land Sewer Public Sewer Special Listing Conditions None Utilities Electricity Available Sewer Available Water Available Water Source Public Zoning PPD

Coastal Carolina Association of Realtors logo Listing information © 2025 Coastal Carolinas Association of REALTORS® MLS. Listing provided by NextHome The Agency Group MB:.


Coastal Carolina Association of Realtors logo© 2025 Coastal Carolinas Association of REALTORS® MLS. All rights reserved. IDX information is provided exclusively for consumers' personal, non-commercial use and may not be used for any purpose other than to identify prospective properties consumers may be interested in purchasing. Information is deemed reliable but is not guaranteed accurate by the MLS or Sloan Realty Group. The data relating to real estate for sale or lease on this web site comes in part from CCAR. Real estate listings held by brokerage firms other than Sloan Realty Group are marked with the CCAR logo or an abbreviated logo and detailed information about them includes the name of the listing broker. Data last updated: 2025-11-11T18:20:39.113.
 
https://bt-photos.global.ssl.fastly.net/ccar/orig_boomver_1_2502737-2.jpg https://bt-photos.global.ssl.fastly.net/ccar/orig_boomver_1_2502737-2.jpg https://bt-photos.global.ssl.fastly.net/ccar/orig_boomver_1_2502737-2.jpg
Logo
Sloan Realty Group
3120 Waccamaw Blvd Ste C
Myrtle Beach SC, 29579